- Главная
- Автомобильные подъемники
- Двухстоечные подъемники
- Грузоподъемностью 4 тонны
- KraftWell VERSA 2C Подъемник двухстоечный, верхняя синхронизация, г/п 4 т., упр.стопорами на 1-й колонне
KraftWell VERSA 2C Подъемник двухстоечный, верхняя синхронизация, г/п 4 т., упр.стопорами на 1-й колонне
- Производитель: KraftWell
- Страна изготовитель: КНР
- Артикул: MKS-19608
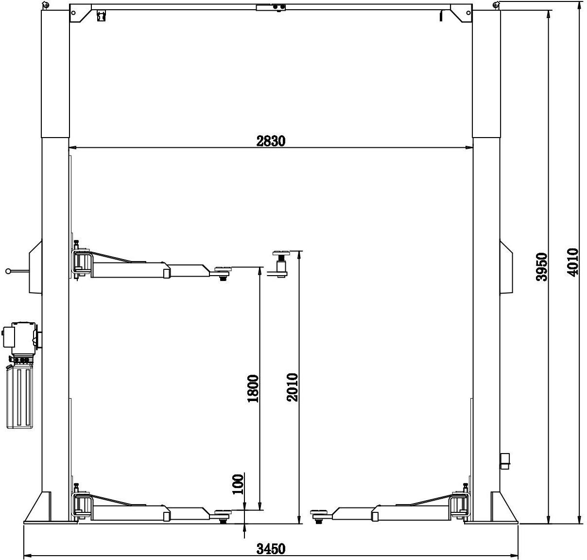
- Габариты: ДШВ 284х345х401 см
- Вес: 640+23 кг
- Гарантия: 1 год
- Кол-во мест: 2
- Категория: Двухстоечные
на 2 мес

доставку в ваш город

Описание
Двухстоечные гидравлические подъемники – наиболее распространенный тип подъемного оборудования. В каждом автосервисе можно встретить хотя бы один двухстоечный подъемник. Такое широкое распространение они получили благодаря простой конструкции при достаточно большом функционале. На двухстоечном подъемнике можно производить практически все процедуры обслуживания, за исключением процедуры регулировки углов установки колес. Подъем автомобилей осуществляется при помощи поворотных лап с изменяемым диапазоном длины, что позволяет охватить максимальное количество автомобилей. Среди двухстоечных подъемников встречаются различные модели, отличающиеся друг от друга типом исполнения и техническими характеристиками. Наиболее важным отличием считается тип синхронизации верхняя или нижняя. Оба типа синхронизации имеют как преимущества, так и недостатки. Так, например, преимуществом подъемника с нижней синхронизацией является малая высота стоек (колонн) при высоте подъема до 1900 мм. Такой подъемник удобно устанавливать в помещении с низкими потолками. К недостатку нижней синхронизации относится наличие защитного короба между стойками, в котором проходит трос синхронизации и гидравлические шланги к цилиндрам. Этот короб может мешать механику при обслуживании автомобиля. Подъемник с верхней синхронизацией лишен этого недостатка за счет прокладки троса синхронизации и гидравлических шлангов в полости верхней балки, соединяющей колонны. Еще одним плюсом подъемника с верхней синхронизацией является его более жесткая конструкция благодаря все той же верхней балке. При этом, главным недостатком такого подъемника является высота стоек, порой в 1,5 раза превышающая высоту стоек подъемника с нижней синхронизацией. Из-за этого могут появиться сложности с установкой в помещении с низкими потолками. Таким образом, первое, на что нужно обратить внимание при выборе двухстоечного подъемника это тип синхронизации. Однако, это не единственный параметр, который требуется учитывать.
При выборе двухстоечного подъемника следует обратить внимание на его характеристики:
Грузоподъемность
Тип синхронизации: верхняя или нижняя
Тип привода: электрогидравлический или электромеханический
Конструкция поворотных лап: симметричные или асимметричные
Способ снятия стопорных механизмов: механический или электрический
Конфигурация колонн: стандартные или развернутые под углом
Двухстоечный электрогидравлический подъемник с верхней синхронизацией KRAFTWELL VERSA 2C оснащается каретками с лапами, расположенными внутри каретки. Зубчатые сегменты, предотвращающие поворот лап в поднятом состоянии, так же находятся внутри. Короткие трехсекционные лапы имеют длину 725-1125 мм, длинные двухсекционные – 730-1460 мм.
Грузоподъемность этого подъемника составляет 4000 кг. За подъем автомобиля отвечают два гидравлических цилиндра с цепным приводом каретки. Такой тип привода уменьшает нагрузку на гидроцилиндры и обеспечивает долговечность их работы. Каретки снабжены нейлоновыми ползунами, обеспечивающими плавное перемещение внутри стоек. Простая и, в тоже время, надежная система механических стопоров со снятием с одной стороны обеспечивает безопасное удержание автомобиля в поднятом состоянии на протяжении всего времени ремонта. Габаритная высота подъемника составляет 3650 мм и позволяет устанавливать его в помещениях с высотой потолка от 4 метров и выше.
Конструктивные и функциональные особенности:
ИК-датчикдля предотвращения соприкосновения крыши автомобиля с верхней балкой
Каретка с расположением поворотных лап внутри
Механические устройства для блокировки поворота лап внутри каретки
2 шт 2-х ступенчатые и 2 шт 3-х ступенчатые лапы
Асимметричная конструкция поворотных лап
В комплектерегулируемые резьбовые подхваты
Скользящие адапторы на лапахдля увеличения диапазона обслуживаемых автомобилей
Два гидравлических цилиндра с цепным приводом каретки
Надежный гидравлический контур
Верхняя синхронизация стальным тросом
Механическое устройство контроля натяжения троса
Механические предохранительные стопоры-защелки
Снятие со стопоров с однойстороны
Перепускной клапан перегрузки
Аварийный клапан опускания
Комплект проставок100 ммв стандартной комплектации
АнкераМ18х160 ммв комплекте10 шт.
ВАЖНО!
Данноеоборудование разработанои сертифицировано исключительно для использования в сухих отапливаемых помещениях с нормальным уровнем влажности.
Использование оборудования в условиях повышенной влажности может привести к:
Повреждению электронных компонентов
Короткимзамыканиям
Потере гарантии
Созданию опасных ситуаций для механика
Повреждению гидроцилиндров подъемников
Соблюдение данного требования является обязательным для безопасной эксплуатации и сохранения гарантии, а также работоспособности оборудования.
| Упр. стопорами | на 1-ой колонне |
|---|---|
| Габариты (в упаковке) | |
| Кол-во мест | 2 |
| Категория | Двухстоечные |
| Мощность | 2.2 |
| Г/п | 4000 |
| Сеть | 380 |
| Время подъема/опускания | 50 |
| Темп. диапазон | -10/+40 |
| Диапазон регул. подхв. | 725-1125/730-1460 |
| Клиренс | 100 |
| Объем масла | 10 |
| Подъем до | 2010 |
| Расст. между стойками | 2830 |
| Синхронизация | верхняя |
| Вес (в упаковке) | 640 кг |









